
項目位于利馬南部的拉斯帕爾馬斯俱樂部里,單面臨著博內爾島街。委托的設計包括為客戶及其家人設計季節性海濱別墅,并利用地形為兒童和客人設計舒適地容納小家庭的空間。

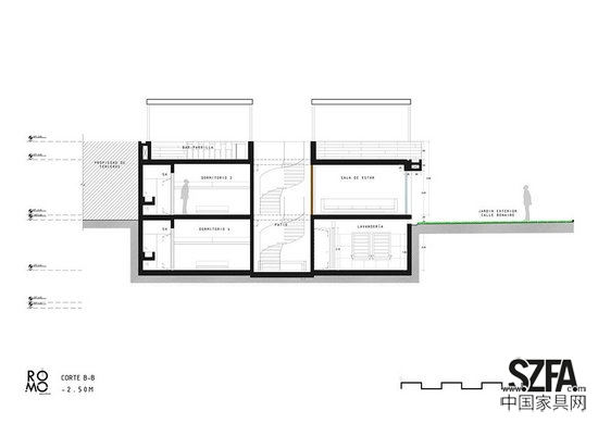
解決方案簡單并且強調功能性,最大化利用空間而不犧牲照明和通風。房屋有6間自然采光的臥室,光線通過一個大的中央庭院照進來,院子是流通的核心。設計和住宅理念也旨在最大化社交和會議區域,其作為室內外之間的空間,在房屋不同功能區之間扮演過渡空間。


過梁強調了入口空間,并且支撐起有頂的空間框架:如客廳、廚房和客衛。混凝土格柵和木材用作緩沖,來給房屋提供不同程度的相對街道的私密。


樓前區域作為進入私人臥室區和二樓露臺的前奏。在露臺區域,朝向前面的部分、開放式客廳和主餐廳使得視野靠近街道立面。在樓的背面,泳池和燒烤區位于陽臺旁更私密的位置,可以欣賞大海和周圍環境。



社交區域的分布能容納一個大家庭,接待不同的團體和聚會,因為空間功能是半獨立的。但是,露臺作為這個海濱別墅的特點,變成了房子的社交環境,通過一座橋梁將兩個樓連接在同一水平,能讓人欣賞風景。



使用的材料有露石混凝土、拋光混凝土、水磨石和馬賽克,力圖將房屋裝飾成半鄉村的氛圍,突出一些對比的元素,如樓梯、木工及家具,這些元素給房屋設計帶來當代特色。




建筑設計: Romo Arquitectos
項目位置: 秘魯 Asia District
主建筑師: Lorena Rotalde, José Monteverde
項目面積: 178.0平方米
項目時間: 2015年
攝 影: Renzo Rebagliati Fotografía
合作: Roberto Sevilla, Pablo Basto
結構: Pablo Basto





